2025
Vivienda unifamiliar en Hoyo de Manzanares
Vivienda unifamiliar aislada en una parcela que presenta una topografía bastante irregular, existiendo abundante vegetación y diversas afloraciones rocosas. Se ubica en la parte alta de la parcela, en la primera plataforma de acceso desde la vía pública. Consta únicamente de dos plantas sobre rasante, ya que no se realizó sótano, y cubierta plana invertida





2025
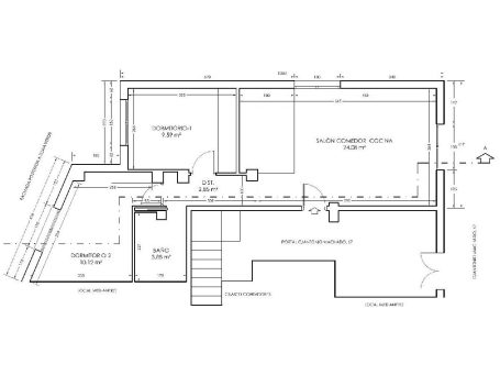
Cambio de uso de local a vivienda en Madrid
La actuación presente consiste en el acondicionamiento de un local y su cambio de uso a vivienda. El acceso a la vivienda se realiza directamente desde la calle. El espacio destinado a Salón-comedor-cocina se distribuyen a lo largo de la fachada principal, de modo que disponga del máximo aporte de luz y ventilación posible. Uno de los dormitorios da al patio interior de luces del edificio y el dormitorio principal y el cuarto de baño da al patio de luces trasero, de esta forma, todas las estancias de la vivienda disponen de iluminación y ventilación natural.



2019
Acondicionamiento de local y cambio de uso a vivienda en San Fernando de Henares
Vivienda en un edificio plurifamiliar compuesta de un dormitorio doble, otro sencillo, un baño, un pasillo-distribuidor y una pieza que forma el estar, la cocina y el comedor. El acceso es posible hacerlo desde el interior del edificio abriendo un hueco desde el portal. Todas las piezas se distribuyen a lo largo de la fachada, de modo que disponen del máximo aporte de luz y ventilación natural posible, a excepción del baño que es interior.




2008
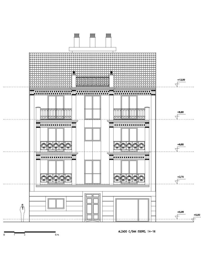
Edificio residencial entre medianeras en la C/San Isidro (Oropesa del Mar)
Se plantea una edificación de 4 plantas vivideras y un bajo cubierta destinado a trasteros y maquinaria. El programa se organiza alrededor de un núcleo central donde se ubica un patio de luces, la escalera y el hueco de ascensor, y otro patio de luces trasero.
Con el fin de sacar el máximo partido posible a la edificabilidad permitida del solar, en la planta baja se localiza una vivienda adaptada a personas minusválidas y un local comercial. El resto de plantas se destina a viviendas, de diferentes tamaños, y la planta de bajo cubiertas a trasteros, maquinaría de ascensor, cámaras y posible ubicación de los equipos de aire acondicionado.




2003
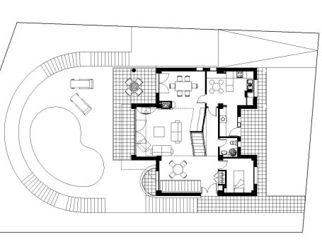
Vivienda unifamiliar aislada en "El Balcó" (Oropesa del Mar)
La configuración topográfica, las vistas privilegiadas sobre la costa de Oropesa del Mar y la orientación Sur, configuraron la disposición y la organización del edificio, así las zonas vivideras (salón-comedor y dormitorios) se abren hacia el sur y a las vistas con grandes ventanales y las zonas de servicio se ubican en la zona norte y hacia la calle de acceso con pequeñas ventanas. De esta manera la planta de la casa (un cuadrado de 11,24 m de lado) queda dividida en dos por medio de los espacios de circulación-distribución separando las zonas nobles de las zonas de servicio. En la fachada sur se colocan unas terrazas voladas para disfrutar de las vistas y protegerse del sol de verano.





2002
Vivienda unifamiliar aislada, calle Madroño, "El Balcó", Oropesa del Mar
La vivienda gira en torno a la escalera de comunicación (entra la zona pública y privada) y un vacío que se genera en el centro del edificio con una doble altura en el salón. Rodeando ésta zona central y creando una planta en forma de U se colocan el comedor, la cocina, el acceso, un aseo y el cuarto de invitados. La planta primera se desarrolla de igual forma con dos pastillas laterales que contienen los dormitorios y un pasillo-distribuidor que completa la U descrita. Las dependencias destinadas a salón-comedor y acceso se abren hacia el sur, disfrutando de unas vistas privilegiadas sobre el casco antiguo de Oropesa y con vistas a la costa. Se coloca en esta fachada unas terrazas voladas a modo de parasol con el fin de evitar la entrada del sol en verano pero permitiendo su entrada el la época invernal.



2002
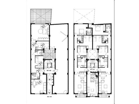
Rehabilitación de edificio residencial en la C/Ponzano (Madrid)
- Planta baja. Mejorar los acabados y respetar los accesos a los locales comerciales existentes y que estan en uso.
- Planta Primera, segunda, tercera y cuarta.: Distribuirlas para dos viviendas, conforme a la configuracion actual del edificio. Esta disposición se redacta por entender los promotores que es la adecuada para la demanda de la zona.
- En la planta bajo cubierta o 4ª se mejorará con la creación de 4 mansardas autorizadas por el Ayuntamiento con objeto de que se puedan dejar los techos inclinados y las existentes vigas de madera vistas.
- Se mantiene la actual composición general del edificio, con la instalación de un elevador en el hueco de la escalera, cuyo recinto será acristalado para permitir la vista de la escalera (que ha de conservarse).





2001 2002
Acondicionamiento de las calles Castillo, Hospital y San José (Oropesa del Mar)
Proyecto englobado dentro del PLAN DE EXCELENCIA TURÍSTICA DEL MUNICIPIO DE OROPESA DEL MAR (CASTELLÓN) de fecha marzo de 1.999, y dentro de la Propuesta de Acondicionamiento y Mejora General del Trazado Urbano del Pueblo Antiguo de Oropesa, se centra en la actuación a realizar en la calle Castillo, Hospital y San José, proponiendo una solución acorde con el conjunto arquitectónico y definiendo un paisaje urbano atractivo como zona singular de encuentro y estancia.
La actuación se realiza sobre espacios públicos lineales (calles peatonales o de tráfico rodado) que conectan entre sí dotaciones culturales o comerciales potencialmente atractivas y espacios públicos abiertos (plazas y lugares de interés).




1999/2000
Museo del Hierro (Colección Luis Elvira) - Oropesa del Mar
Situado en el casco antiguo de Oropesa del Mar se encuentra el Museo del Hierro creado a partir de la colección del anticuario Luis Elvira. En un intento generalizado de recuperar el casco histórico y huyendo de crear un edifico que desentone con el aspecto de pueblo mediterráneo, se plantea el recuperar la fachada original del edificio realizando una distribución en planta baja acorde con las nuevas necesidades, enfatizando la simetría que ya poseía en planta primera, desplazando para ello el portón de entrada a su posición lógica en el centro del paño y manteniendo el aspecto decimonónico del conjunto. En el interior, por el contrarío, se pretende dotarlo de un aire de vanguardia dándole ese aspecto de transparencia y de visión seriada de espacios sin fin.



1998




1998
Acondicionamiento de local comercial para tienda de artesanía en la C/Arrieta (Madrid)
Espacio entre la tienda tradicional de artesanía y la galería de arte, dedicado a la exposición y venta de objetos de decoración y complementos personales, con un diseño moderno y de calidad, de las manos de autores reconocidos.




